MENU CLOSE

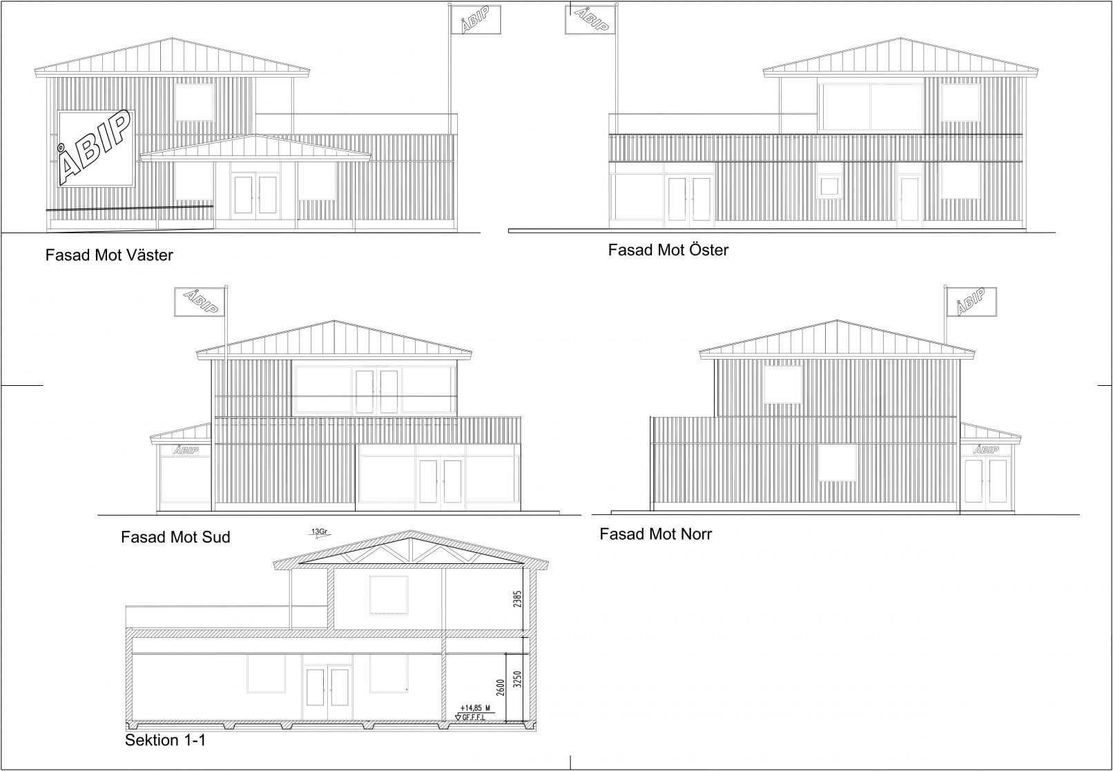
Akersberga Sportsclub Tråsättra

New Clubhouse Meeting Rooms 292 Square Meters
Kitchen & Servery Boardrooms
Grandstand & Roofterrace
Design Development
Building Approvals/Construction Support
(Under Construction 2022)

Year

  • 2019