HOME
WHO WE ARE
PROJECTS
CONTACT
MENU
CLOSE
HOME
WHO WE ARE
PROJECTS
CONTACT
MENU
CLOSE
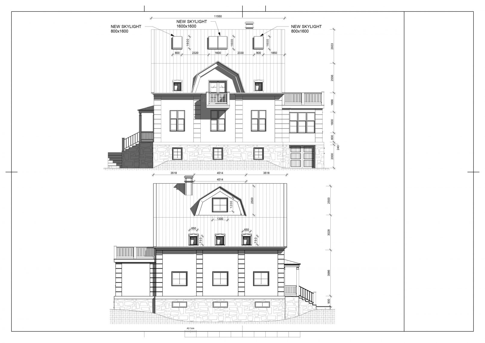
Stocksund Villa
Loft Conversion of a Historic Villa
3-D Modelling for New Staircase Dormer
Windows and Skylights.
Year
2017
Previous
BACK
Next